Design
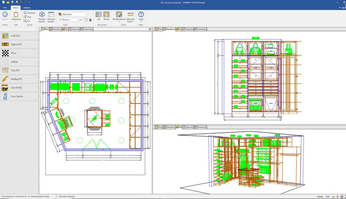
Konfigurace pro designéry a konstruktéry umožňující vytvoření návrhu, fotorealistické vizualizace, cenové nabídky a generování výkresové dokumentace ve formě nárysných pohledů na nábytkové sestavy.
Konfigurace pro designéry a konstruktéry umožňující vytvoření návrhu, fotorealistické vizualizace, cenové nabídky a generování výkresové dokumentace ve formě nárysných pohledů na nábytkové sestavy.